¿Perdido?

  • SUBSUELO
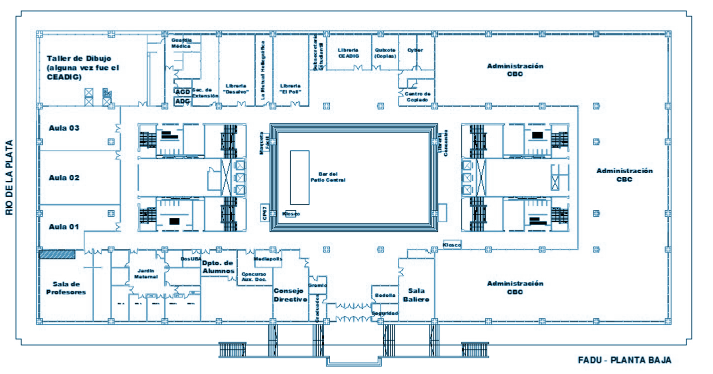
  • PLANTA BAJA
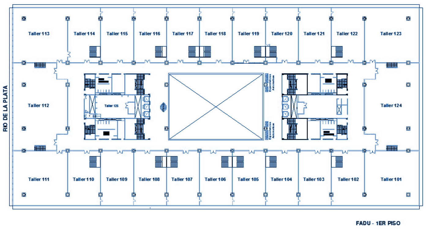
  • PRIMER PISO
  • ENTRE PISO
  • SEGUNDO PISO
  • TERCER PISO
  • CUARTO PISO